M11500 Alutherm Super Plus je tehnološki njnapredniji sistem termoizolacioniha ramova, sa istim karakteristikama kao M11000 Alutherm Plus.
M11500 Alutherm Super Plus dostiže najviše klase evropskih specifikacija u smislu toplotne i zvučne izolacije, vjetra i vode, popustljivost na istezanje od strane IFT Rosenheima.
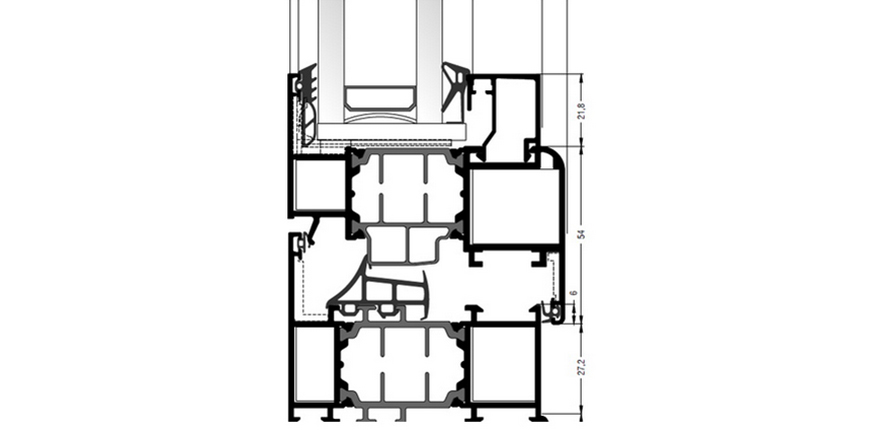
Detalji
◘ sistem sa termičkim prekidom vrhunskih performansi unapređenog sistema M11500
◘ širina osnovnog krila 85,5mm
◘ širina osnovnog štoka 76,5mm
◘ zaptivanje pomoću tri EPDM zaptivke
◘ veliki broj različitih rješenja, sa mogućnošću upotrebe profila
različitog estetskog dizajna
◘ profili za prozore sa skrivenim krilom
◘ ugradnja oklopno-nagibnog okova
◘ okov za euro žlijeb ili okov za PVC profile
◘ profili sa dvije slobodne komore koje omogućavaju dobru
evakuaciju vode i dobro vezivanje
◘ termički prekid pomoću poliamida ojačanih staklenim vlaknima (34mm)
◘ mogućnost upotrebe livenih spojnica, spojnica za upresavanje
i spojnica sa klinovima
◘ profili za sve dimenzije vrata, pogodni i za komercijalne i za
privatne objekte
Najnapredniji sistem termoizolacionih ramova
Osnovna tipologija
◘ jednokrilni, dvokrilni i višekrilni prozori sa ili bez grilja
◘ ulazna vrata i staklene stijene
◘ ugaone konstrukcije
Ispitivanja
◘ EKANAL, IFT
◘ Termo izolacija po EN ISO10077-2 Uf=1,9 - 2,1 W/m2K
◘ Vazdušna nepropusnost po EN 12207 Klasa 4
◘ Vodonepropusnost po EN12208 Klasa E900
◘ Otpornost na udar vjetra po EN122100 C5
◘ Zvučna izolacija po EN20140-3 47 dB